El centro penitenciario de Piedras Negras “era uno de los cinco o seis lugares habilitados en Piedras Negras para las ejecuciones y la desaparición de cuerpos”.
Ciudad de México, 22 de marzo (SinEmbargo).– El penal de Piedras Negras, en Coahuila, fue uno de los lugares habilitados por Los Zetas para la ejecuciones y la desaparición de cuerpos entre por lo menos 2010 y 2011, es decir en los gobiernos de Humberto Moreira Valdés y de Felipe Calderón Hinojosa. Un auténtico centro de exterminio en el que calcinaron y desaparecieron a hombres, mujeres, mayores de edad, jóvenes e incluso niños.
Eso establece el informe “El yugo Zeta. Norte de Coahuila 2010-2011” publicado por el Colegio de México en noviembre de 2017 y cuyos autores son Sergio Aguayo y Jacobo Dayán. Las denuncias expuestas en este informe se desprenden del expediente APP 005/2014-BIS de la Fiscalía General del Estado de Coahuila y es coincidente con un puñado de reportes que se llegaron a publicar desde la prensa no convencional.
Lo ocurrido en este centro penitenciario es uno de los episodios de violencia registrados en el norte de Coahuila en este periodo como sucedió con otras masacres registradas en Piedras Negras y Allende que corresponden a una venganza perpetrada por Miguel Ángel y Óscar Omar Treviño Morales, los líderes zetas Z-40 y Z-42 que se encuentran en EU.
Autoridades de ese país propiciaron estas matanzas al haber entregado información delicada a una unidad de la Policía Federal de Genaro García Luna, preso en ese país por narcotráfico, la cual a su vez avisó a los líderes zetas que habían sido traicionados por Alfonso Poncho Cuéllar, quien tenía como subordinados a Héctor Moreno Villanueva, “El Negro”, y a Luis Garza Gaytán, “La Güiche” o “La Güichina”. Para castigar su deslealtad, los hermanos zetas llevaron a cabo una estrategia de exterminio en el que este penal tuvo un papel importante.
Los reportes dan cuenta que las autoridades del Gobierno de Humberto Moreira y el de Felipe Calderón sabían que el penal de Piedras Negras era dominado por los Zetas, pese a ello en 2011 el presupuesto gubernamental dedicado a las cárceles de Coahuila fue de 135 millones de pesos. A eso hay que sumar que “los municipios también subsidiaban a los criminales; en Allende parte del presupuesto asignado a la gasolina usada por la seguridad pública se entregaba a los Zeta”, señala el reporte del Colmex.
Los periodistas estadounidenses Brandon Darby e Ildefonso Ortiz ya habían dado a conocer en febrero de 2016 que como parte de esta estrategia de exterminio, “los Zetas comenzaron a reunir a familias enteras, amigos, parientes lejanos y personas inocentes que tuvieran alguno de esos apellidos, incluso si no estaban relacionados” para torturarlas y asesinarlas mediante una variedad de métodos crueles. “Los cuerpos fueron llevados a un rancho cerca de Allende o a la prisión de Piedras Negras para hacer desaparecer los cadáveres”.
Esta misma información de 2016 indica que los Zetas tenían pleno control operativo de la prisión hasta el punto de que llevaron a más de 150 personas a la prisión para torturarlas, asesinarlas e incinerarlas. “A pesar de la brutalidad del caso, los principales medios de televisión y la prensa de Estados Unidos han ignorado el secuestro y asesinato de cientos de personas de Allende, Coahuila”, escribieron ambos periodistas.
El informe del Colmex confirma en ese sentido que el centro penitenciario de Piedras Negras “era uno de los cinco o seis lugares habilitados en Piedras Negras para las ejecuciones y la desaparición de cuerpos. Otros centros de exterminio eran un terreno baldío cercano a la zona llamada Laguito Mexicano y, cerca del penal, un basurero municipal y un campo de futbol”.
Sergio Aguayo y Jacobo Dayán apuntan en este informe que una posible explicación a la incineración cuerpos “sería el escándalo mundial generado por el hallazgo de 72 migrantes ejecutados en San Fernando, Tamaulipas en agosto de 2010”; un caso atribuible al Z-42.
El Jefe de Cárcel de los Zetas declaró ante el Ministerio Público que la primera vez que llegaron los Zetas con “gente muerta” le dijeron “hay un trabajo para que lo hagan ya”. Cuando le explicaron de qué se trataba, el Jefe de Cárcel se negó en un principio, pero antes amenazas que se extendieron a su familia aceptó.
“Con esa aclaración finalizó la discusión; el Jefe de Cárcel y su equipo se pusieron a aprender el oficio. Los capacitaron. En la primera ocasión ‘ellos… metieron un cadáver en un tanque de doscientos litros que ellos traían en sus trocas… y ahí le echaban DISEL y luego lo prendían con lumbre, y ese día fue la muestra que ellos nos hicieron’. Después bajaron “‘doce cuerpos de las camionetas… y los incineramos’, se lee en el informe.
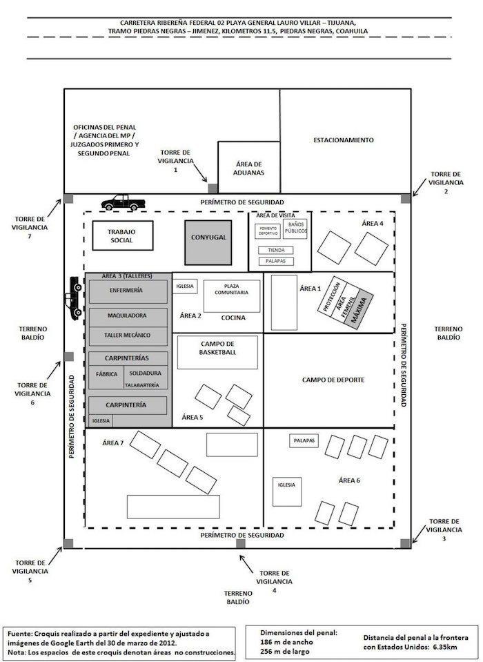
Y agrega: “Con el tiempo se estableció una rutina. Cuando iban a tener ese tipo de encargo le ‘avisaban [al Jefe de Cárcel] y este a su vez mandaba a alguien de su gente a avisar a los custodios [para que] abrieran inmediatamente’. Los vehículos recorrían el perímetro de seguridad y al ‘llegar a la zona de talleres ya estaba el Jefe de Cárcel y su gente, bajaban’ a las víctimas vivas o muertas. Uno de los trabajadores de la cárcel explica que los ‘llevaban… por donde están los talleres, es decir por donde está la enfermería y la iglesia’. Caminaban por el llamado ‘pasillo de la muerte’. Internos, Zetas, custodios y trabajadores coinciden en que algunos llegaban vivos, ‘los tenían hincados y amarrados de sus manos hacia atrás’ en ocasiones ‘gritaban personas, yo creo que los mataban ahí’. Los ejecutaban de dos maneras: ‘les daban un martillazo en la cabeza’ o ‘un tiro en la nuca’. No está claro qué determinaba el método”.
Mientras se realizaba la quema de personas, los “cocineros”, como se les conoce a los sujetos que realizaban este exterminio, platicaban, tomaban cerveza y se drogaban. Eso sí, “cuando destruían cuerpos, se trastornaba la vida del penal. Los custodios recibían órdenes de dejar las torres de vigilancia y sacaban de esa zona a los internos. Los internos eran encerrados en sus módulos y nadie podía acercarse a la zona de talleres. Se desplegaban presos para que vigilaran como halcones: entre siete y diez en la enfermería y de ocho a diez en los talleres. Sin embargo, varios internos podían ver las llamas y la columna de humo además de que el olor a cabello quemado y diésel llegaba a buena parte del centro de rehabilitación”.
“Al finalizar se vaciaban los restos de los toneles en el suelo, se recogían con pala y se metían en una cubeta. Luego aplastaban los tambos donde los habían quemado brincando primero sobre ellos y pasando la camioneta después. Según declaraciones contenidas en el expediente, las cubetas con las cenizas y los tambos los tiraban en el río San Rodrigo a la altura del Ejido El Moral en la Carretera Piedras Negras–Acuña. También utilizaban un lote baldío rumbo al Ejido Piedras Negras”.
El reporte menciona que las cenizas y pequeños restos de las víctimas que quedaban se dispersaban en distintos lugares del penal. Un preso lo explicó así a las autoridades. “Sobre las víctimas, los testimonios hablan de que en muchos casos se trataba de “chapulines” (vendedores de droga ajena a los Zeta), personas que les debían dinero a los Zeta, así como familiares de ambos y otras personas sin vínculo alguno con los Zeta ni con actividades criminales. Ahí desaparecieron habitantes de Piedras Negras, Acuña, los Cinco manantiales (Allende, Morelos, Nava, Villa Unión y Zaragoza) y otros municipios cercanos. En el texto se habla de hombres, mujeres, mayores de edad, jóvenes e incluso niños y ancianos así como de una mujer embarazada de 7 meses”.

seguridad y los edificios marcados en gris. Los talleres, la zona de máxima seguridad y el
área conyugal (donde vivía el Jefe de Cárcel y sus gentes más cercanas) eran fortalezas que
se abrían o cerraban a voluntad del cartel.
El exterminio en Allende y Piedras Negras
Una filtración de la DEA desencadenó una masacre en marzo de 2011 en Allende, Coahuila, que durante casi dos años permaneció en silencio. Un crimen perpetrado por Los Zetas que se cobró la vida de alrededor de 300 personas —según testimonios de los propios pobladores— desoló a toda una población y en la que fueron claves la corrupción de las autoridades, federales y estatales, así como la negligencia de la Agencia Antidrogas de EU que confió información sensible a la Unidad de Investigaciones Sensibles (UIS) que ya había dado pruebas de su infiltración por parte de la delincuencia organizado.
Esa información sensible era el testimonio de operadores de Los Zetas que entregaron a la DEA los números telefónicos de Miguel Ángel y Omar Treviño Morales, el Z-40 y Z-42, respectivamente, como parte de una operación que buscaba detenerlos por su papel en el tráfico de cocaína a Estados Unidos. Distintos personajes involucrados advirtieron de cómo esta Unidad estaba bajo sospecha, pero las alertas fueron ignoradas y esta información sensible llegó a los oídos de lo Treviño Morales que como parte de su venganza acometieron contra familiares lejanos, amigos, trabajadores y conocidos de sus delatores, sin importar que fueran inocentes.
—¿La DEA tiene las manos manchadas de sangre por lo ocurrido en 2011, en la masacre de Allende, allá en Coahuila? —se le preguntó en febrero pasado al periodista de investigación Juan Alberto Cedillo, autor de La masacre de Allende. Crónica de un crimen de Estado y uno de los reporteros que ha dado seguimiento a este caso que ha permanecido lejos de la atención pública.
—En el caso de la masacre de Allende ellos reconocen que la filtración que tuvieron, desde la Unidad de Operaciones sensibles a donde mandaron los números de teléfono los líderes Zetas para que los capturaran, desde esa unidad que era una institución creada por ellos, formada por ellos, financiada por la DEA, desde esa unidad se filtra a Z-40 que alguien lo está traicionando, en lugar de que esos teléfonos que consiguió la DEA con informantes dentro Los Zetas sirvieran para capturarlos, fue todo lo contrario sirvió para que Miguel Ángel Treviño, su hermano, y los líderes Zetas se lanzaran contra los familiares de esos supuestos traidores o presuntos traidores.
“El asunto es que se fueron contra la mayoría de la gente que era inocente, gente que no tenía que ver con el narcotráfico y esa pifia de la DEA no era la primera ocasión que desde esa unidad se filtraba información sensible que compartían para capturar campos, es decir, esta unidad, que era parte de la Policía Federal, Unidad de Operaciones sensibles, estaba conformada por policías federales mexicanos, pero estos policías habían sido seleccionados por la DEA para irlos a capacitar a Quantico, a sus instalaciones de Virginia, allá los prepararon, allá los capacitaron, allá los formaron, allá les pagaron y los utilizaban como sus hombres de confianza en México. Estamos hablando que la propia DEA, porque esa es una unidad de la DEA, provoca esta pifia que termina con una masacre, no es su responsabilidad final, pero sí tienen las manos manchadas de sangre por esas pifias”.

El informe del Colmex menciona que esta venganza de los Zetas fue amplia, se extendió entre el 18 y el 22 de marzo de 2011, y no fue sólo en Allende sino también en Piedras Negras. En esos cinco días, por ejemplo, se hicieron mil 451 llamadas al teléfono de emergencia 089. “Esas cifras nos permiten asegurar que la venganza trascendió a Allende. El caso crece en magnitud y complejidad. No está esclarecido o cerrado. Establecer con mayor precisión el número de víctimas ayudará a los familiares de desaparecidos y permitirá establecer responsabilidades”.
La información reconstruida en este informe indica que en la venganza que se inició el 18 de marzo de 2011 y que afectó a Allende, Piedras Negras y toda la región de los Cinco Manantiales está documentada la participación de presos. “Según los testimonios había algunos que “entraban y salían a placer” de la cárcel porque formaban “parte de la plantilla del grupo en la región”. Uno de ellos “salía mucho a cometer crímenes”. Por tanto, resulta natural que estuvieran “presentes en la venganza contra los Garza”. Otros testimonios, estos rendidos en los juicios de Estados Unidos, cuando necesitaban refuerzos en la región, los Zeta sacaban a más de 100 presos del penal.
El Penal de Piedras Negras fue en sí para los Zetas, además de un refugio, una fuente de ingresos y el centro de operaciones donde adecuaban vehículos para transportar droga a los Estados Unidos e incineraban los cadáveres de sus víctimas, según revela la investigación.
Las fugas de la prisión, de hecho, era uno de los recursos utilizados por los Zeta para reforzar sus filas. “En los estados controlados por este grupo criminal hemos identificado fugas de cerca de 400 reos, al menos, en Coahuila, Nuevo León, Tamaulipas, Veracruz y Zacatecas. Determinar una cifra exacta de Zetas que escaparon de prisión en estos y otros estados es complejo ya que en falta información sobre la pertenencia a grupos criminales por parte de los fugados”.







